zurück zu "Projekte"
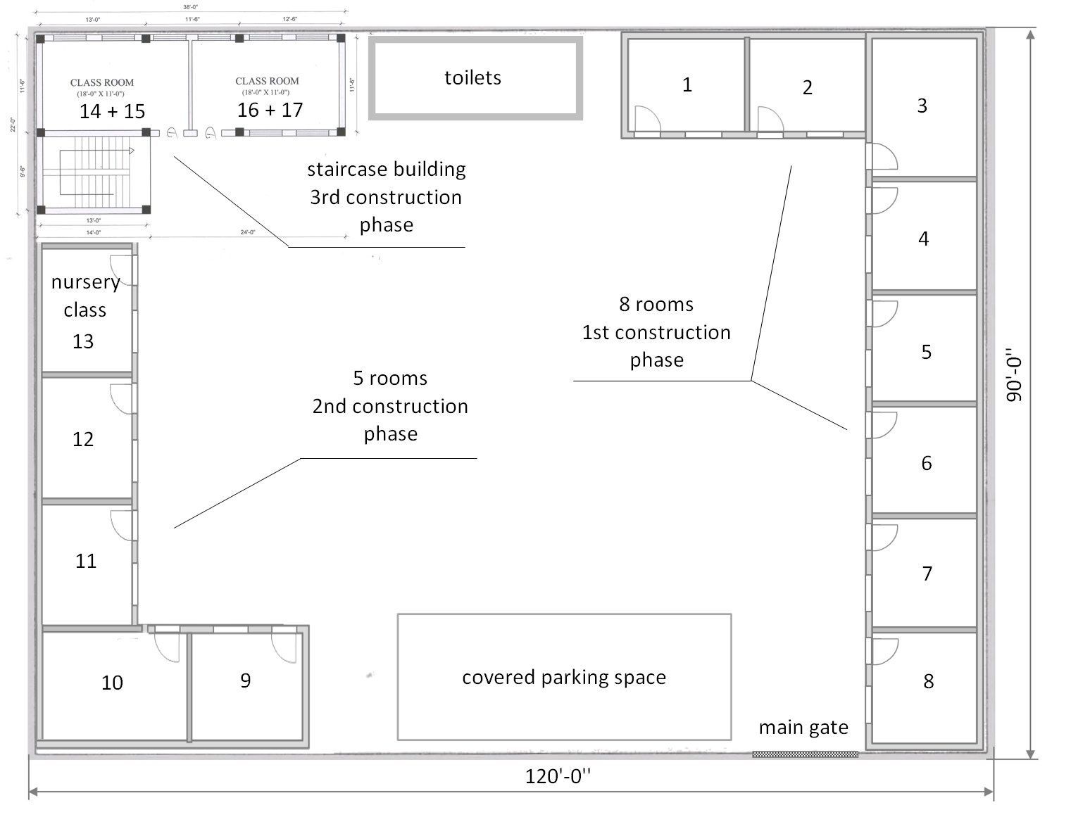
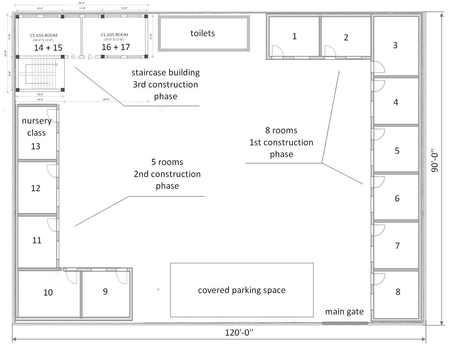
Auf dem neuen Grundstück der NEBS wurden 7 Klassenzimmer und ein Lehrerzimmer in Form eingeschossiger Reihengebäude inkl. der erforderlichen Infrastruktur (Wasser-, Stromversorgung, Toiletten etc.) eines umgrenzenden Zauns (massive Ziegelmauer) errichtet und im Januar 2020 etwa 130 Schüler in die neuen Klassenzimmer übersiedelt.
Im März 2022 folgte die Errichtung eines Reihengebäudes mit 5 zusätzlichen Klassenzimmern, in das die restlichen 70 Schüler übersiedelt wurden.
Damit ist die Übersiedlung an die neue Schule vollständig abgeschlossen, wodurch die Mietkosten für die alten Schulgebäude entfallen.
Wie aus der nachstehenden Lageplanskizze ersichtlich ist, war auf dem neuen Grundstück noch genügend Platz für die gemeinsamen morgendlichen Freiübungen (wie in Nepal üblich) sowie bei Bedarf für eine kleine Erweiterung der Schulgebäude vorhanden.
In die noch vorhandene freie Randfläche wird nun noch ein 2-geschossiges Gebäude mit Stiegenhaus für 4 weitere Klassenzimmer errichtet, das bei Bedarf um 3 zusätzliche Etagen erhöht werden kann.
Gemäß baurechtlicher Vorgaben war dieses Gebäude erdbebensicher zu bauen.
Der Bau dieses Gebäudes hat im April 2023 begonnen und wurde im Dezember 2023 fertiggestellt.

