back to "Projects"
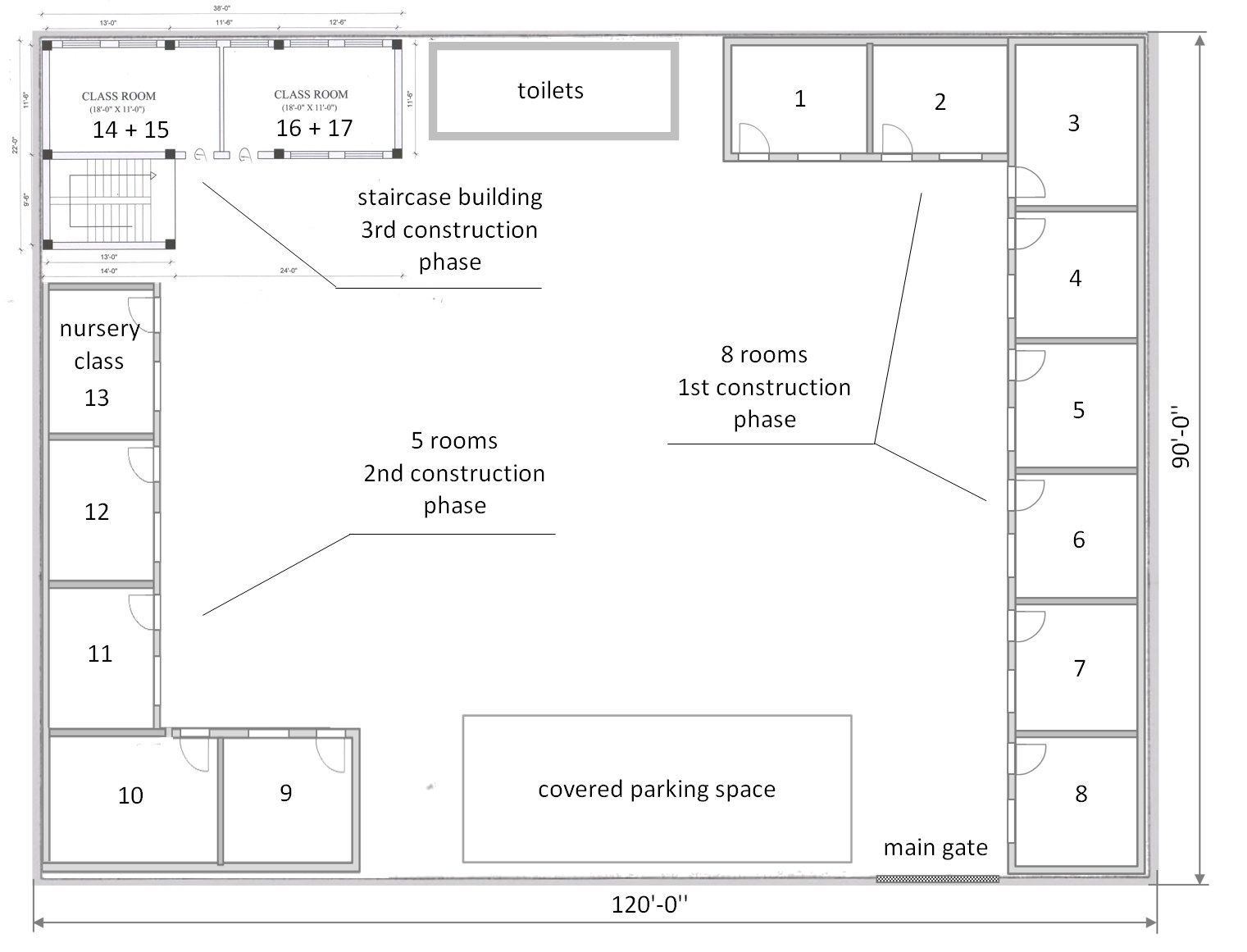
On the new NEBS property, 7 classrooms and a staff room were built in the form of one-storey row buildings including the necessary infrastructure (water, power supply, toilets, etc.) and a surrounding fence (solid brick wall).
In January 2020 around 130 students moved into the new classrooms.
In March 2022, a row building with 5 additional classrooms was built, into which the remaining 70 students were moved.
This completes the move to the new school, eliminating the rental costs for the old school building.
As can be seen from the sketch below, there was still enough space on the new property for the assembled morning exercise (as is usual in Nepal).
In the remaining free edge area, a 2-story building with a staircase for 4 additional classrooms had been now erected, which can be raised by 3 additional floors if needed.
According to building regulations, this building is to be built earthquake-proof.
Construction of this building began in April 2023 and was completed in December 2023.

